Ir al contenido
Marin Camila
Interiorismo con propósito y personalidad
Portafolio
CV
Contacto
Portafolio
CV
Contacto
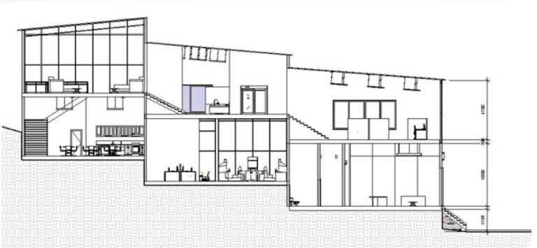
Oficina Cachivaches
Propuesta de diseño de oficina
En terreno inclinado, para la empresa cachivaches.